在大多数人看来,公寓的面积越大越好,毕竟空间大了,能放置的家具多,生活起来也更舒适。
但如果你真的尝试过给一套小小的公寓进行装修后,就会发现这并非是唯一的答案。这是一个挑战,需要你仔细考虑每一个细节,探索空间的每一个角落,并寻找解决方案来满足业主的需求,让我们一起来看看今天的案例吧~

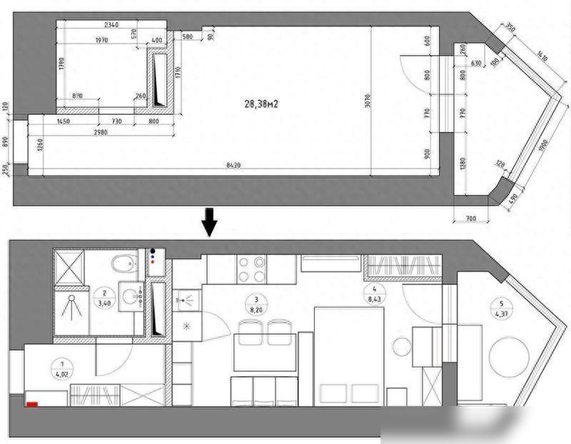
这对夫妻选择了蜗居在28.4平的小公寓里, 因为他们不打算有孩子,所以对空间的需求并不大。然而,虽然面积不大,但他们希望能拥有一个完整的生活空间,无论是家务、工作还是休息,都希望能在这个小巧的空间里实现。

一、28.4㎡公寓的布局与常规房型不同
这套公寓只有28.4㎡,但房型方正, 户型无浪费的凹凸角落,空间的使用率很高, 只需通过合理的布局与功能区划分,就能满足业主的多样需求,可想而知,这就考验设计师的实力了!

二、如何让空间发挥最大价值,每个细节都不能被忽略
01.玄关区
我们在进入这个小公寓之前,先来看看玄关区的设计。 为了应对有限的空间,设计师选择了将换鞋凳、鞋柜和衣柜结合在一起的多功能柜体,这样不仅节省了空间,还提供了充足的收纳空间,满足了业主的日常需求。

在小公寓中, 换鞋凳上方悬空的设计可以增加空间的透视感,同时避免了低矮区域的潮湿问题。此外,设计师还考虑到 换鞋凳的高度需要根据每个家庭成员的身高进行合理设计,以确保使用的舒适度和便利性。

02. 卫生间
卫生间的空间也有限, 为了保持干爽,设计师采用了干湿分离的设计,这样可以充分利用空间,同时保持卫生间的整洁。
淋浴房的隔断设计确保了水流不会洒落在卫生间的其他区域,而洗衣机柜的设计则 提供了一个隐藏洗衣机的空间,保持了卫生间的整洁美观。

卫生间的设计注重实用性与美观性的统一,采用了简约现代的风格,通过简洁的线条和明亮的色彩,使整个空间显得更加开阔, 浴室柜的设计也非常人性化,提供了充足的储物空间,方便存放各种洗漱用品,而且使用起来非常方便。

03.厨房
厨房的设计同样注重实用性与美观性的结合, 采用了L型布局,可以更好地利用空间,同时提供了充足的操作台面。厨房与客餐厅实现了一体化,打破了空间的局限,使整个公寓显得更加宽敞明亮。

厨房的收纳设计非常巧妙,通过墙体的合理利用, 设计师为厨房提供了充足的储物空间,方便存放各种厨具和食材,而且厨房的排风设计也非常合理,确保了厨房空气的流通和清新

04.客厅
客厅的设计以简约为主, 没有过多的装饰和繁琐的设计,整体风格非常清新自然。沙发、茶几和电视柜等家具的选择也非常注重实用性与美观性的结合, 为了增加空间的舒适感,业主还在墙面上挂了一些艺术画作和植物点缀。

客厅的布局也非常合理,整体以功能区为主,设计师注重空间的流动性和连贯性,使整个公寓显得更加开放和宽敞。 业主可以在这里与家人一起看电视、聊天、休息,享受惬意的生活时光。

05.卧室
卧室是夫妻二人的私密空间,他们对卧室的设计注重舒适与实用, 卧室的配备非常齐全,配有双人床、电视柜和嵌入式衣柜等家具,空间使用非常合理。
同时, 卧室的采光也非常好,大面积的窗户可以让阳光洒进来,打造了一个明亮、舒适的空间。卧室的墙面也被简单处理,大面积的留白设计避免了空间的压迫感。

06.办公区
公寓的办公区设在窗边,采光非常好, 大窗户不仅提高了空间的亮度,还提供了良好的通风条件,保证了空气的新鲜流通。 办公区的布局也经过精心设计,配备了舒适的办公桌椅和充足的储物空间,方便存放各种办公用品。

07.阳台
阳台是这个公寓中最有趣的部分之一。 阳台的设计采用了休闲区的概念,配备了舒适的卡座沙发和收纳柜,成为了夫妻二人放松和享受休闲时光的理想场所。
在这里,夫妻二人可以一边享受阳光的照射,一边欣赏城市的美景。阳台的色彩搭配和装饰也非常讲究,营造出一种轻松愉悦的氛围,让人感到放松和愉悦。

三、小户型的设计不再是难题,掌握这些知识点轻松搞定
过去,许多人认为小户型的设计是一项艰巨的任务,尤其是在空间有限的情况下,很难找到合适的设计方案来满足居住者的需求。然而,通过不断地探索和研究,我们发现,小户型的设计其实并不难,只要掌握了一些关键的知识点,就能够轻松搞定。
知识点01:小户型可以融合智能家居技术

小户型空间的划分有限,房间的布局也较少,想要在这样的空间中实现多功能的使用,就需要巧妙地运用家具的组合和位置的安排。
例如,可以选择一些 具有多功能性的家具,如沙发床、折叠桌椅等,既能满足日常生活的需要,又能节省空间。同时,还可以利用墙壁、天花板等位置进行收纳, 如安装壁挂式书架、收纳盒等,既实用又美观。

而且小户型毕竟面积有限,在设计中还需要注重室内空气质量与采光效果,以提升居住舒适度。因此,可以在室内适当引入绿色植物,增加空气中的氧气含量,同时还可以选择 一些透明或半透明的窗帘和窗户设计,以增加室内光线的透入量。
知识点02:小户型的可变家具设计

比如说阳台, 我们可以将其设计为休闲区,配备舒适的沙发和茶几,成为夫妻享受阳光和城市美景的理想场所。同时, 我们也可以在阳台的角落处设置一台小型的桌子和椅子,作为备用的工作和学习区域。
这样的设计不仅为业主提供了更多的功能选择,还使得阳台的使用率得到了最大化。

此外, 在阳台区域的墙壁上安装收纳柜和书架,可以让夫妻在休闲时也能享受到阅读的乐趣,增加空间的实用性;也可以 在阳台上摆放一些绿色植物,增加空间的生机和活力。

知识点03:小户型的隔音处理
小户型由于空间有限,往往需要承担更多的生活功能,因此,如何处理好室内的隔音问题,成为了设计师们必须面对的一项挑战。
好的隔音设计不仅可以提供一个安静舒适的生活环境,还能提升居住的私密性和舒适度。 因此,在设计小户型时,需要充分考虑到隔音的难点,并结合实用性和美观性,为业主提供一个理想的居住空间。

总结来说,对于这对丁克夫妻来说,这套28.4平的公寓设计是非常成功的,不仅满足了夫妻二人的生活需求,还为他们提供了一个舒适、开放的生活空间。在空间规划、家具选择、色彩搭配等方面都做到了极致的考虑,展现出了小户型设计的独特挑战与成就感。
